产品详情
| 概 述 |
| 目前国内常用的斗提机均为垂直式,较新型符合标准TB3926-85的有TD型、TH型,它们的主要特征、用途见下表: |
| 型式 | TD型 | TH型 |
| 结构特征 | 采用橡胶带作牵引构件 | 采用锻造的环形链条作为牵引构件 |
| 卸载特征 | 采用离心式或混合式方式卸料 | 采用混合式或重力式方式卸料 |
| 适用输送物料 | 松散密度<1.5t/m3的粉状、粒状、小块状的无磨琢性、半磨琢性物料 | 松散密度<1.5t/m3的粉状、粒状、小块状的无磨琢性、半磨琢性物料 |
| 适用温度 | 被输送物料温度不得超过60℃,如采用耐热橡胶带时温度不超过200℃ | 被输送物料温度不得超过250℃ |
| 型号 | TD100、TD160、TD250、TD315、TD400、TD500、TD630 | TH315、TH400、TH500、TH630(TH800)(TH1000) |
| 提升高度 | 约在4-40mm范围内 | 约在4.5-40mm范围内 |
| 输送量 | 4-238m3/h | 35-185m3/h |
| TD型斗式提升机 |
| 技术性能 |
|
斗提机型号 |
TD100 |
TD160 |
TD250 |
TD315 | ||||||||||
| 料斗型式 |
Q |
H |
Q |
H |
Zd |
Sd |
Q |
H |
Zd |
Sd |
Q |
H |
Zd |
Sd |
| 输送量,m3/h |
4 |
7.6 |
9 |
16 |
16 |
27 |
20 |
36 |
38 |
59 |
28 |
50 |
42 |
67 |
| 料斗容积,L |
0.15 |
0.3 |
0.49 |
0.9 |
1.2 |
1.9 |
1.12 |
2.24 |
3.0 |
4.6 |
1.95 |
3.55 |
3.75 |
5.8 |
| 料斗运行速度,m/s |
1.4 |
1.4 |
1.6 |
1.6 | ||||||||||
| 滚筒转速,r/min |
67 |
67 |
61 |
61 | ||||||||||
|
斗提机型号 |
TD400 |
TD500 |
TD630 | |||||||||
| 料斗型式 | Q | H | Zd | Sd | Q | H | Zd | Sd | Q | H | Zd | Sd |
| 输送量,m3/h | 40 | 76 | 68 | 110 | 63 | 116 | 96 | 154 | - | 142 | 148 | 238 |
| 料斗容积,L | 3.1 | 5.6 | 5.9 | 9.4 | 4.84 | 9.0 | 9.3 | 14.9 | - | 14 | 14.6 | 23.5 |
| 料斗运行速度,m/s | 1.8 | 1.8 | 2.0 | |||||||||
| 滚筒转速,r/min | 55 | 55 | 48 | |||||||||
| 主要结构 |
| TD型斗提机结构型式 |
| 传动装置 TD型斗提机的传动装置有两种形式,分别配有YZ型减速器或ZQ(YY)型减速器。YZ型轴装减速器直接套装在主轴轴头上,省去了传动平台、联轴器等,使结构紧凑,重量轻,而且其内部带有异型螺逆止器,逆止可靠。该减速器噪声低,运转平稳,并随主轴浮动,可消除安装应力。 |
| TD型斗提机备有四种料斗Q型(浅斗)、H型(弧底斗)、Zd型(中深斗)、Sd型(深斗) |
![]() |
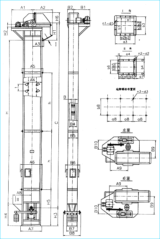
| TD型斗提机外形及安装尺寸 |
| 外形尺寸表 |
| 斗提机型号 | TD100 | TD160 | TD250 | TD315 | TD400 | TD500 | TD630 | |
| 轮廓高度L | C+1100 | C+1365 | C+1535 | C+1640 | C+1790 | C+1865 | C+2045 | |
| 整机结构 | H | C-820 | C-930 | C-1250 | C-1245 | C-1500 | C-1700 | C-1730 |
| H4 | 600 | 700 | 800 | 850 | 950 | 900 | 1060 | |
| S | 200 | 250 | 250 | 250 | 250 | 250 | 315 | |
| 料斗 | t | 200 | 350/280 | 450/360 | 500/400 | 560/480 | 625/500 | 710 |
| b | 100 | 160 | 250 | 315 | 400 | 500 | 630 | |
| 地脚孔 | a3 | 200 | 250 | 300 | 300 | 400 | 400 | 380 |
| b3 | 310 | 400 | 538 | 648 | 768 | 900 | 1020 | |
| n3 | 8 | 8 | 8 | 8 | 8 | 8 | 10 | |
| d3 | Φ18 | Φ18 | Φ18 | Φ18 | Φ22 | Φ22 | Φ30 | |
| 上、下部机壳及外形轮廓 | H3 | 970 | 1185 | 1320 | 1488 | 1500 | 1655 | 1750 |
| H6 | 1210 | 1500 | 1800 | 1800 | 2000 | 2300 | 2500 | |
| A2 | 692 | 985 | 1175 | 1200 | 1350 | 1410 | 1590 | |
| A6 | 776 | 996 | 1266 | 1266 | 1558 | 1610 | 1890 | |
| A7 | 1050 | 1235 | 1600 | 1700 | 1980 | 2200 | 2500 | |
| B2 | 220 | 295 | 394 | 440 | 535 | 605 | 660 | |
| B4 | 370 | 461 | 596 | 706 | 828 | 980 | 1110 | |
| B5 | 3, 30 | 475 | 610 | 710 | 835 | 1000 | 1110 | |
| 中部机壳 | A4 | 776 | 982 | 1152 | 1254 | 1548 | 1570 | 1850 |
| A5 | 805 | 1021 | 1302 | 1400 | 1580 | 1630 | 1910 | |
| B3 | 390 | 525 | 682 | 794 | 920 | 1040 | 1160 | |
| 卸料口 | H1 | 520 | 630 | 750 | 795 | 850 | 1000 | 1200 |
| A3 | 438 | 548 | 713 | 763 | 824 | 885 | 1045 | |
| a1 | 334 | 365 | 600 | 560 | 670 | 700 | 700 | |
| a2 | 120 | 150 | 200 | 230 | 295 | 355 | 300 | |
| a3 | 390 | 431 | 676 | 638 | 758 | 880 | 800 | |
| b1 | 224 | 315 | 450 | 560 | 670 | 780 | 900 | |
| b2 | 95 | 150 | 200 | 230 | 295 | 300 | 280 | |
| b3 | 280 | 381 | 526 | 638 | 758 | 800 | 1000 | |
| n1 | 12 | 12 | 12 | 12 | 12 | 12 | 14 | |
| d1 | Φ12 | Φ12 | Φ12 | Φ12 | Φ14 | Φ18 | Φ18 | |
| 进料口 | H5 | 900 | 1320 | 1320 | 1320 | 1600 | 1600 | 1885 |
| a4 | 280 | 355 | 355 | 400 | 450 | 500 | 560 | |
| a5 | 80 | 58 | 58 | 80 | 100 | 65 | 85 | |
| a6 | 100 | 150 | 150 | 160 | 175 | 210 | 160 | |
| a7 | 19 | 45 | 45 | 38 | 40 | 40 | 30 | |
| b4 | 220 | 320 | 320 | 400 | 450 | 500 | 630 | |
| b5 | 100 | 155 | 155 | 160 | 215 | 220 | 160 | |
| b6 | 250 | 370 | 370 | 460 | 510 | 550 | 700 | |
| n2 | 9 | 9 | 9 | 9 | 9 | 9 | 12 | |
| d2 | Φ10 | Φ12 | Φ12 | Φ12 | Φ14 | Φ14 | Φ14 | |
| ZQ型斗提机驱动装置配套表 |
|
斗提机型号 |
传动装置代号 |
电动机 |
ZQ减速器型号 |
重量kg | ||
|
型号 |
功率,KW |
右装传动装置 |
左装传动装置 | |||
| TD100 | C1 | Y100L-6 | 1.5 | ZQ25-16-IIIZ | ZQ25-16-IVZ | 230 |
| C2 | Y112M-6 | 2.2 | 240 | |||
| TD160 | C1 | Y132S-6 | 3 | ZQ35-12.5-IIIZ | ZQ35-12.5-IVZ | 472 |
| C2 | Y132M1-6 | 4 | 490 | |||
| C3 | Y132M2-6 | 5.5 | ZQ40-12.5-IIIZ | ZQ40-12.5-IVZ | 563 | |
| C4 | Y160M-6 | 7.5 | 621 | |||
| TD250 | C1 | Y132M2-6 | 5.5 | ZQ40-16-IIIZ | ZQ40-16-IVZ | 576 |
| C2 | Y160M-6 | 7.5 | 616 | |||
| C3 | Y160L-6 | 11 | ZQ50-16-IIIZ | ZQ50-16-IVZ | 838 | |
| C4 | Y180L-6 | 15 | 903 | |||
| TD315 | C1 | Y160M-6 | 7.5 | ZQ40-16-IIIZ | ZQ40-16-IVZ | 645 |
| C2 | Y160M-4 | 11 | ZQ50-20-VIZ | ZQ50-20-VZ | 855 | |
| C3 | Y160L-4 | 15 | 883 | |||
| TD400 | C1 | Y180L-6 | 15 | ZQ50-16-IIIZ | ZQ50-16-IVZ | 936 |
| C2 | Y200L1-6 | 18.5 | ZQ65-16-VIZ | ZQ65-16-VZ | 1687 | |
| C3 | Y200L2-6 | 22 | 1702 | |||
| C4 | Y225M-6 | 30 | 1787 | |||
| TD500 | C1 | Y180L-6 | 15 | ZQ50-16-IIIZ | ZQ50-16-IVZ | 1724 |
| C2 | Y200L1-6 | 18.5 | ZQ65-16-VIZ | ZQ65-16-VZ | 1760 | |
| C3 | Y200L2-6 | 22 | 1775 | |||
| C4 | Y225M-6 | 30 | 1810 | |||
| TD630 | C1 | Y200L2-6 | 2 | ZQ65-20-VIZ | ZQ65-20-VZ | 1876 |
| C2 | T225M-6 | 30 | 1952 | |||
| YY型斗提机驱动装置配套表 |
|
斗提机型号 |
传动装置代号 |
电动机 |
减速机型号 |
重量kg | |
|
型号 |
功率,KW | ||||
|
TD160 |
C1 |
Y112M-4 |
ZLY112-16 |
296 | |
|
C2 |
Y132S-4 |
5.5 |
ZLY112-16 |
321 | |
|
C3 |
Y132M-4 |
7.5 |
ZLY125-16 |
355 | |
|
TD250 |
C1 |
Y132S-4 |
5.5 |
ZLY112-16 |
373 |
|
C2 |
Y132M-4 |
7.5 |
ZLY125-16 |
466 | |
|
C3 |
Y160M-4 |
11 |
ZLY140-16 |
587 | |
|
TD315 |
C1 |
Y132M-4 |
7.5 |
ZLY125-16 |
452 |
|
C2 |
Y160M-4 |
11 |
ZLY140-16 |
590 | |
|
C3 |
Y160L-4 |
15 |
ZLY160-16 |
639 | |
|
TD400 |
C1 |
Y160M-4 |
11 |
ZLY140-16 |
551 |
|
C2 |
Y160L-4 |
15 |
ZLY160-16 |
693 | |
|
C3 |
Y180M-4 |
18.5 |
ZLY160-16 |
734 | |
|
C4 |
Y180L-4 |
22 |
ZLY180-16 |
790 | |
|
TD500 |
C1 |
Y160L-4 |
15 |
ZLY160-16 |
771 |
|
C2 |
Y180M-4 |
18.5 |
ZLY160-16 |
812 | |
|
C3 |
Y180L-4 |
22 |
ZLY180-16 |
854 | |
|
C4 |
Y225M-6 |
30 |
ZLY200-16 |
1202 | |
|
TD630 |
C1 |
Y200L2-6 |
22 |
ZLY180-16 |
1208 |
|
C2 |
Y225M-6 |
30 |
ZLY200-12.5 |
1401 | |
|
C3 |
Y250M-6 |
37 |
ZLY224-12.5 |
1639 | |
|
C4 |
Y280S-6 |
45 |
ZLY224-12.5 |
1815 | |
| TD型斗提机传动装置尺寸表 |
|
斗提机型号 |
传动装置尺寸(配置ZQ型减速器) | ||||||
|
制法 |
H2 |
A8 |
B6 |
B7 |
A1 |
B2 | |
| TD100 | C1 |
165 |
620 |
504.5 |
315 |
900 |
624.5 |
| C2 |
619 |
322 | |||||
| TD160 | C1 |
290 |
868 |
674 |
405 |
1245 |
914 |
| C2 |
424 | ||||||
| C3 |
340 |
918 |
729 |
434 | |||
| C4 |
469 | ||||||
| TD250 | C1 |
340 |
898.5 |
819 |
434 |
1273 |
1021 |
| C2 |
480 | ||||||
| C3 |
410 |
924 |
839 |
566 |
1295 |
1055 | |
| C4 |
591.5 | ||||||
| TD315 | C1 |
335 |
828 |
918 |
497 |
1290 |
1147 |
| C2 |
405 |
925 |
938 |
558 |
1420 |
1300 | |
| C3 |
1050 |
563 | |||||
| C4 | |||||||
| TD400 | C1 |
405 |
1045 |
1041.5 |
592 |
1600 |
1443 |
| C2 |
445 |
1156 |
1148.5 |
745 |
2155 | ||
| C3 | |||||||
| C4 |
1106 |
752 | |||||
| TD500 | C1 |
445 |
1252.5 |
1120 |
720.5 |
1640 |
1705 |
| C2 |
1224 |
745.5 | |||||
| C3 | |||||||
| C4 |
764.5 | ||||||
| TD630 | C1 |
450 |
1106 |
1318 |
764.5 |
1725 |
1765 |
| C2 |
1206 |
786 | |||||
| TH型斗式提升机 |
| TH型斗提机外形及安装尺寸 |
![]() |
| 斗提机主要尺寸 |
|
斗提机型号 |
整机结构尺寸 |
地脚孔尺寸 |
上部机壳尺寸 |
下部机壳尺寸 |
中部机壳尺寸 | |||||||||||||
|
L |
H |
H3 |
S |
a8 |
b8 |
n3×d3 |
H1 |
A2 |
B2 |
H5 |
A7 |
A8 |
B5 |
A4 |
A5 |
B3 |
B4 | |
| TH160 | C+1300 | C-750 | 750 | 200 | 400 | 350 | 6×Φ18 | 900 | 1000 | 295 | 1500 | 1131 | 1330 | 497 | 1000 | 1105 | 280 | 385 |
| TH200 | C+1350 | C-750 | 750 | 200 | 400 | 425 | 6×Φ18 | 900 | 1000 | 340 | 1500 | 1131 | 1374 | 506 | 1000 | 1105 | 255 | 460 |
| TH250 | C+1500 | C-950 | 850 | 200 | 340 | 496 | 8×Φ22 | 1000 | 1190 | 376 | 1800 | 1346 | 1649 | 598 | 1180 | 1362 | 400 | 532 |
| TH315 | C+1600 | C-900 | 900 | 250 | 350 | 571 | 8×Φ22 | 1120 | 1267 | 443 | 1800 | 1416 | 1825 | 695 | 1250 | 1396 | 475 | 621 |
| TH400 | C+1760 | C-950 | 950 | 250 | 400 | 658 | 8×Φ22 | 1250 | 1394 | 518 | 1900 | 1566 | 2080 | 793 | 1400 | 1546 | 560 | 706 |
| TH500 | C+2300 | C-940 | 1060 | 250 | 360 | 788 | 10×Φ26 | 1400 | 1545 | 579 | 2000 | 1808 | 2380 | 910 | 1600 | 1768 | 670 | 838 |
| TH630 | C+2300 | C-950 | 1250 | 300 | 400 | 918 | 10×Φ26 | 1600 | 1706 | 644 | 2200 | 2028 | 2720 | 1066 | 1800 | 1968 | 800 | 968 |
| TH800 | C+2390 | C-880 | 1320 | 300 | 450 | 1100 | 10×Φ26 | 1800 | 1866 | 709 | 2200 | 2208 | 3110 | 1216 | 2000 | 2148 | 1000 | 1148 |
| TH1000 | C+2650 | C-950 | 1400 | 300 | 410 | 1360 | 12×Φ32 | 2000 | 2065 | 825 | 2350 | 2460 | 3560 | 1460 | 2200 | 2370 | 1200 | 1370 |
| TH1250 | C+2780 | C-1000 | 1500 | 320 | 450 | 1570 | 12×Φ32 | 2400 | 2221 | 910 | 2500 | 2660 | 4040 | 1710 | 2400 | 2570 | 1450 | 1520 |
|
斗提机型号 |
卸料口尺寸 |
进料口尺寸 | |||||||||||||||||||||||
|
H1 |
A3 |
a1 |
a2 |
a3 |
a10 |
B4 |
b1 |
b2 |
b3 |
n1 |
d1 |
H4 |
A6 |
a4 |
a5 |
a6 |
a7 |
a9 |
b4 |
b5 |
b6 |
b7 |
n2 |
d2 | |
| TH160 | 900 | 760 | 500 | 180 | 565 | 620 | 400 | 280 | 180 | 345 | 10 | Φ12 | 1120 | 615 | 180 | 70 | 120 | 20 | 230 | 150 | 100 | 210 | 250 | 6 | Φ10 |
| TH200 | 900 | 790 | 500 | 280 | 565 | 620 | 480 | 355 | 235 | 420 | 10 | Φ12 | 1120 | 640 | 224 | 94 | 140 | 20 | 274 | 200 | 120 | 250 | 290 | 6 | Φ10 |
| TH250 | 1000 | 890 | 630 | 225 | 700 | 760 | 530 | 400 | 250 | 476 | 10 | Φ12 | 1250 | 765 | 280 | 107 | 180 | 28 | 343 | 250 | 160 | 296 | 362 | 6 | Φ12 |
| TH315 | 1120 | 940 | 630 | 225 | 700 | 760 | 600 | 475 | 225 | 551 | 12 | Φ14 | 1250 | 830 | 355 | 170 | 145 | 25 | 410 | 315 | 145 | 375 | 425 | 9 | Φ12 |
| TH400 | 1250 | 1060 | 710 | 250 | 780 | 850 | 690 | 560 | 250 | 630 | 12 | Φ14 | 1400 | 960 | 450 | 95 | 180 | 30 | 515 | 375 | 180 | 445 | 505 | 9 | Φ12 |
| TH500 | 1400 | 1215 | 800 | 300 | 880 | 950 | 810 | 670 | 300 | 750 | 12 | Φ18 | 1600 | 1125 | 560 | 140 | 210 | 30 | 625 | 475 | 200 | 545 | 605 | 9 | Φ12 |
| TH630 | 1600 | 1315 | 900 | 350 | 980 | 1050 | 940 | 800 | 350 | 880 | 12 | Φ18 | 1800 | 1290 | 710 | 115 | 200 | 30 | 775 | 600 | 180 | 670 | 730 | 12 | Φ14 |
| TH800 | 1800 | 1550 | 1000 | 300 | 1080 | 1150 | 1140 | 1000 | 300 | 1080 | 16 | Φ18 | 2000 | 1485 | 900 | 160 | 250 | 30 | 970 | 750 | 200 | 830 | 890 | 12 | Φ14 |
| TH1000 | 2000 | 1750 | 1100 | 300 | 1200 | 1260 | 1360 | 1200 | 350 | 1300 | 16 | Φ18 | 2140 | 1700 | 1120 | 230 | 300 | 35 | 1200 | 950 | 250 | 1040 | 1110 | 12 | Φ14 |
| TH1250 | 2400 | 1850 | 1200 | 350 | 1300 | 1360 | 1610 | 1450 | 404 | 1550 | 16 | Φ18 | 2300 | 1940 | 1400 | 360 | 350 | 35 | 1480 | 180 | 300 | 1270 | 1340 | 12 | Φ14 |
| 驱动装置选型 |
| 本提升机驱动装置为YY型(即ZLY或ZSY型减速器和Y型电动机配用)。传动轴驱动功率同下式求得: |
| P0= | QCg | +Ps+PL(KW) |
| 3600 |
| 式中: |
| P0--传动轴驱动功率,kW; |
| Q--斗提机输送量,t/h; |
| C--斗提机上、下轴间高度,m; |
| g--重力加速度,m/s2; |
| PS,PL--附加功率,KW,见表 |
|
附加功率 |
TH160 |
TH200 |
TH250 |
TH315 |
TH400 |
TH500 |
TH630 |
TH800 |
TH1000 |
TH1250 |
| Ps,KW | 2 | 2 | 2 | 3 | 3 | 4 | 4 | 5 | 5 | 6 |
| PL,KW | 0.2 | 0.2 | 0.3 | 0.5 | 0.8 | 1.2 | 2.2 | 3.4 | 6 | 8.4 |
| PD= | Po | (KW) |
| л |
| 式中:л--总效率; |
| PD--电动机功率,KW; |
| 按上虐求出电机功率后,可下表查得相应的驱动装置型号、制法。 |
| YY型驱动装置技术规范及相关尺寸 |
|
斗提机型号 |
驱动装置 |
电动机 |
减速器型号 |
相关尺寸,mm |
重量kg | |||
|
型号 |
功率KW |
A1 |
B1 |
H2 | ||||
| TH160 | Y2Y112 | Y100L1-4 | 2.2 | ZLY112-11.2-I(S)/II(N) | 728 | 815 | 205 | 89 |
| Y3Y112 | Y100L2-4 | 3 | 96 | |||||
| Y4Y112 | Y112M-4 | 4 | 104 | |||||
| Y5Y112 | Y132S-4 | 5.5 | 130 | |||||
| Y7Y125 | Y132M-4 | 7.5 | ZLY125-11.2-I(S)/II(N) | 220 | 153 | |||
| TH200 | Y3Y112 | Y100L2-4 | 3 | ZLY112-12.5I(S)/II(N) | 734 | 960 | 205 | 112 |
| Y4Y112 | Y112M-4 | 4 | 127 | |||||
| Y5Y112 | Y132S-4 | 5.5 | 154 | |||||
| Y7Y125 | Y132M-4 | 7.5 | ZLY125-12.5-I(S)/II(N) | 220 | 163 | |||
| Y11Y140 | Y160M-4 | 11 | ZLY140-12.5-I(S)/II(N) | 260 | 235 | |||
| TH250 | Y4Y112 | Y112M-4 | 4 | ZLY112-18-I(S)/II(N) | 698 | 1023 | 205 | 184 |
| Y5Y125 | Y132S-4 | 5.5 | ZLY125-18-I(S)/II(N) | 220 | 195 | |||
| Y7Y140 | Y132M-4 | 7.5 | ZLY140-18-I(S)/II(N) | 260 | 278 | |||
| Y11Y160 | Y160M-4 | 11 | ZLY160-18-I(S)/II(N) | 280 | 360 | |||
| Y15Y180 | Y160L-4 | 15 | ZLY180-18-I(S)/II(N) | 320 | 416 | |||
| TH315 | Y5Y125 | Y132S-4 | 5.5 | ZLY125-20-I(S)/II(N) | 718 | 1025 | 220 | 205 |
| Y7Y140 | Y132M-4 | 7.5 | ZLY140-20-I(S)/II(N) | 260 | 310 | |||
| Y11Y160 | Y160M-4 | 11 | ZLY160-20-I(S)/II(N) | 280 | 380 | |||
| Y15Y180 | Y160L-4 | 15 | ZLY180-20-I(S)/II(N) | 720 | 1156 | 320 | 536 | |
| Y18Y180 | Y180M-4 | 18.5 | 564 | |||||
| TH400 | Y7Y140 | Y132M-4 | 7.5 | ZLY140-20-I(S)/II(N) | 854 | 1318 | 260 | 520 |
| Y11Y160 | Y160M-4 | 11 | ZLY160-20-I(S)/II(N) | 280 | 575 | |||
| Y15Y180 | Y160L-4 | 15 | ZLY180-20-I(S)/II(N) | 320 | 672 | |||
| Y18Y180 | Y180M-4 | 18.5 | 690 | |||||
| Y22Y200 | Y180L-4 | 22 | ZLY200-20-I(S)/II(N) | 345 | 827 | |||
| TH500 | Y11Y160 | Y160M-4 | 11 | ZLY160-20-I(S)/II(N) | 1042 | 1394 | 280 | 658 |
| Y15Y180 | Y160L-4 | 15 | ZLY180-20-I(S)/II(N) | 320 | 708 | |||
| Y18Y180 | Y180M-4 | 18.5 | 830 | |||||
| Y22Y200 | Y180L-4 | 22 | ZLY200-20-I(S)/II(N) | 345 | 858 | |||
| Y30Y224 | Y200L-4 | 30 | ZLY224-20-I(S)/II(N) | 370 | 946 | |||
| TH630 | Y18Y200 | Y180M-4 | 18.5 | ZSY200-22.4-I(S)/II(N) | 1042 | 1589 | 345 | 1098 |
| Y22Y200 | Y180L-4 | 22 | ZSY224-22.4-I(S)/II(N) | 1157 | ||||
| Y30Y224 | Y200L-4 | 30 | 370 | 1206 | ||||
| Y37Y250 | Y225S-4 | 37 | ZSY224-22.4-I(S)/II(N) | 400 | 1434 | |||
| Y45Y250 | Y225M-4 | 45 | 1578 | |||||
| TH800 | Y30Y224 | Y200L-4 | 30 | ZSY224-28-I(S)/II(N) | 1178 | 1904 | 370 | 1556 |
| Y37Y250 | Y225S-4 | 37 | ZSY250-28-I(S)/II(N) | 400 | 1784 | |||
| Y45Y280 | Y225M-4 | 45 | ZSY250-28-I(S)/II(N) | 455 | 1928 | |||
| Y55Y315 | Y250M-4 | 55 | ZSY315-28-I(S)/II(N) | 495 | 2184 | |||
| Y75Y335 | Y280S-4 | 75 | ZSY355-28-I(S)/II(N) | 540 | 2724 | |||
| TH1000 | Y37Y280 | Y225S-4 | 37 | ZSY280-31.5-I(S)/II(N) | 455 | 2184 | ||
| Y45Y315 | Y225M-4 | 45 | ZSY315-31.5-I(S)/II(N) | 495 | 2578 | |||
| Y55Y355 | Y250M-4 | 55 | ZSY355-31.5-I(S)/II(N) | 540 | 3124 | |||
| Y75Y355 | Y280S-4 | 75 | 3450 | |||||
| Y90Y400 | Y280M-4 | 90 | ZSY400-31.5-I(S)/II(N) | 590 | 4039 | |||
| TH1250 | Y55Y355 | Y250M-4 | 55 | ZSY355-31.5-I(S)/II(N) | 1285 | 2345 | 540 | 3689 |
| Y75Y355 | Y280S-4 | 75 | 4015 | |||||
| Y90Y400 | Y280M-4 | 90 | ZSY400-31.5-I(S)/II(N) | 590 | 4604 | |||
| Y110Y400 | Y315S-4 | 110 | 4689 | |||||
| Y132Y450 | Y315M1-4 | 132 | ZSY450-31.5-I(S)/II(N) | 640 | 5716 | |||


